家HOME,是一個住所,亦是一種聯結與陪伴。時光流轉,我們迎接生命的每個階段時,也會感受變化之于家庭的美好。因此,家在不同階段承載著不同的功能與作用。

【示意圖】
對于進階中的家庭來說:從二人世界到三口之家、三代同堂的跨越,每個階段中不僅要有情感交流,更需要面對獨立居住功能的要求,聚而不分的三室便是最舒適的禮遇,承接著每個人對空間功能的需求,鑫江·花漾里,百fen百深入探究人本空間煥新升級·百fen百空間·功能三居戶型,禮獻幸福人生。

【示意圖】
花漾三維HOME家
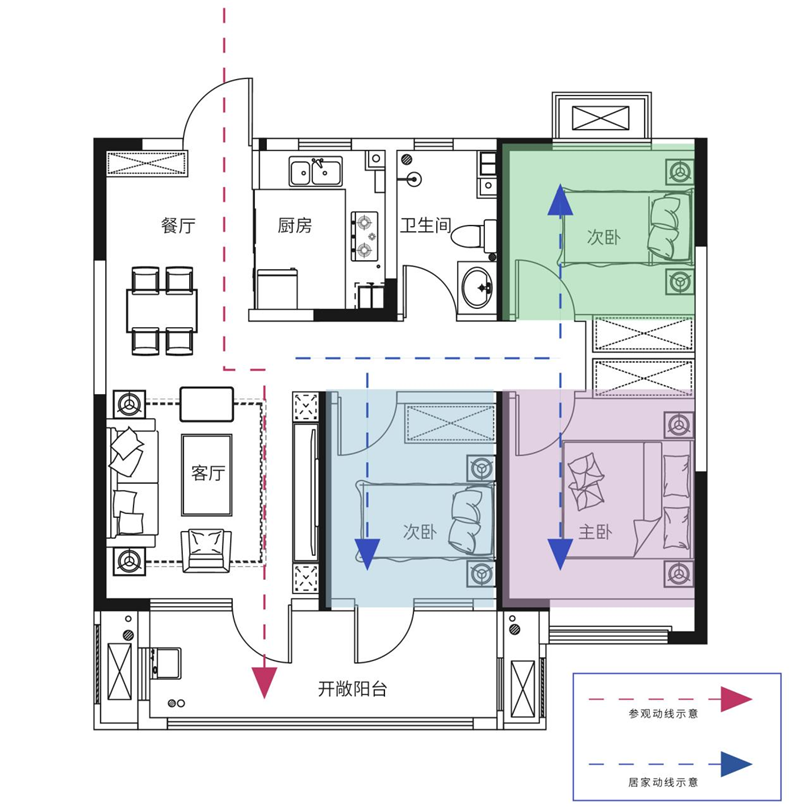
建面約92㎡功能三居H3戶型 盛妝綻放
【戶型圖】
百fen百分享 | 餐客一體 承載團圓時光
好的空間可以陪伴全家人一起成長,讓家庭生活更加融洽和親密,花漾里H3戶型餐客一體的雙廳設計,為家人營造了多維社交空間,三餐共敘,一桌熱氣騰騰的飯菜,全家敞懷舉箸,分享日常趣事,朗闊的客廳空間承載更多溫馨生活場景,休閑談天,多人親友聚會不擁擠。

【H3戶型樣板間實景圖】
百fen百動線 | L型廚房 美食&互動
為家人烹飪美食,滿足一家人的味蕾。方正空間搭配L型布局,空間實用,黃金動線,流暢操作,半開放式吧臺,打造一個便捷早餐、品味下午茶的臨時場所,廚房空間早已成為一條拉近夫妻感情距離的隱形紐帶。
【H3戶型樣板間實景圖】
百fen百光線 | 雙跨陽臺 多元布局
著名建筑師路易斯·康說:“設計空間就是設計光線” ,花漾里雙跨陽臺,連接客廳與兒童房,創造良好的采光&通風條件,雙面動線,為孩子營造一個玩趣的活動空間。超尺度陽臺,除了晾曬、瞰景等常規功能外,還打造了兒童沐光閱讀區,多功能空間布局,匹配家庭每位成員的生活渴望。
【H3戶型樣板間實景圖】
百fen百舒居 | 舒朗主臥 浪漫飄窗&衣飾區
屬于主人房的私密浪漫中,空間是奇妙的催化劑,南側寬景飄窗,升級視覺維度與空間質感,午后小憩、閱讀瞰景,自此就有了專屬的一席,女主人專屬衣飾區,滿足自我的時尚與倉儲,隨心而居,時光靜好,勾勒理想生活的模樣。
【H3戶型樣板間實景圖】
鑫江·花漾里
花漾三維HOME家所打造的理想生活空間,就是要以更強大的包容性,更人性的適配度,實現人生不同階段、全家庭成員對空間的需求,舒居為標尺,品質為核心,靈動為成長性,從尺度到功能再到細節周到考量,升維人居標準。
【示意圖】
項目地址:青島市城陽區銀河路666號
電話:8773 8888